MISSION DE MAITRISE D'OEUVRE POUR L' eXTENSION DE l'ECOLE MATERNELLE jEAN-MOULIN

COMMUNE DE SERVIAN  

Phase : Mission complète , chantier en cours

MO : Mairie de Servian

Architectes : Nicolas André (mandataire) & 

Quatrefages Architecture (associé)

BET : Benjamin FÜNFROCK (structure) /

DURAND (fluides) /

Laurent TOUSSAINT (économie)

Lieu : Servian

SDP :  322 m²

Travaux : 1 148 000 €

MISSION DE MAITRISE D'OEUVRE POUR LA CREATION DE
9 LOGEMENTS SOCIAUX COLLECTIFS

COMMUNE DE BOUILLARGUES

Phase : Mission complète , APV en cours

MO : Un Toit Pour Tous

Architectes : Quatrefages Architecture (mandataire) & 

Nicolas André (associé)

BET : INGE+ (structure) / DEXO (fluides) /

Laurent TOUSSAINT (économie)

Lieu : Bouillargues (30)

SHAB :  600 m²

Travaux : 946 000 €

RENOVATION TOTALE INCLUANT PERFORMANCE ENERGETIQUE, MISE AUX NORMES ET AMENAGEMENT INTERIEURS / VILLA R+1

COMMUNE DE LATTES

Phase : mission complète : Projet – Chantier , APS en cours 

MO : Privé

Architecte : Quatrefages Architecture

Lieu : Lattes

Shab :  85 m²

Coût travaux :  Privé

CONCEPTION ARCHITECTURALE ET ELABORATION DES PLANS POUR LE PERMIS DE CONSTRUIRE D'UNE VILLA NEUVE

COMMUNE DE CASTELNAU LE LEZ

Phase : Projet / Permis de construire , Esquisse en cours 

MO : Privé

Architecte : Quatrefages Architecture

Lieu : Castelnau le Lez

Shab :  250 m²

Coût travaux :  Privé

MAISON BAS / EXTENSION

EXTENSION BOIS EN RDC : CUISINE VITRE , COIN REPAS, COMPTOIR, GARAGE, CUISINE EXTERIEURE

Phase : Etude en cours

MO : Privé

Architecte :  Quatrefages Architecture

Lieu : Lattes

SDP :  45m²

Coût travaux :  Privé

LOGEMENTS COLLECTIFS

ENSEMBLE DE 43 LOGEMENTS 

Phase : PC accepté, études en cours

MO : Privé

Architecte : Nathalie Guerin _ ADA 

& Quatrefages Architecture 

Lieu : Hérault

SDP :  1 944 m²

Travaux : 3,5 M €

 

MAISON STJ / RENOVATION

RENOVATION TOTALE  

Phase : chantier en cours

MO : Privé

Architecte : Quatrefages Architecture 

Lieu : Lattes

SDP :  160 m²

Coût travaux :  Privé

LOGEMENTS INTERMEDIAIRES

ENSEMBLE DE 8 LOGEMENTS 

Phase : Etude de faisabilité 2023

MO : Privé

Architecte : Quatrefages Architecture 

Lieu : Montpellier

SDP :  550 m²

 

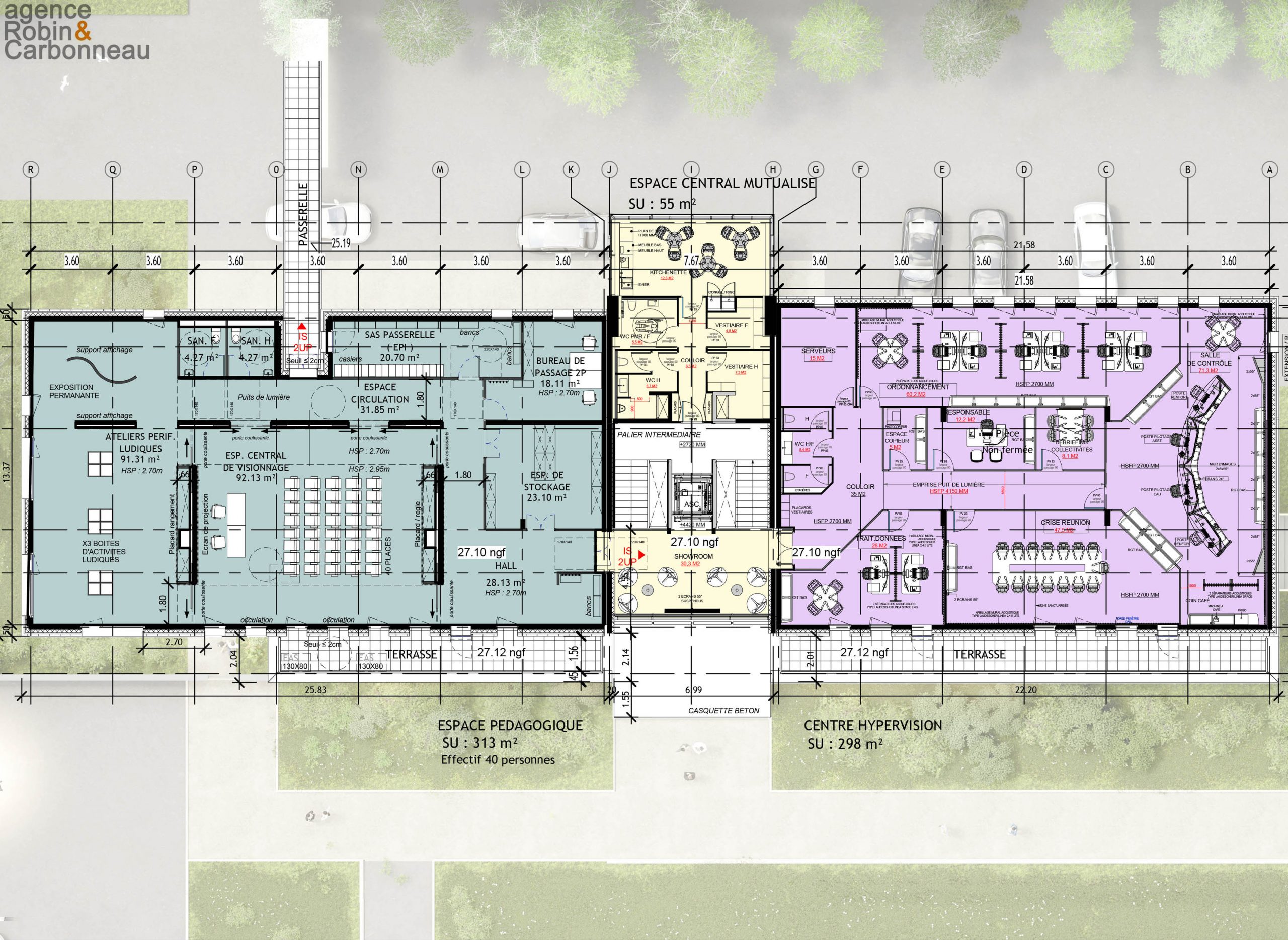
STEP / EXTENSION

CREATION D’UN CENTRE D’HYPERVISION ET D’UN ESPACE PEDAGOGIQUE

Phase : Concours, décembre 2022

MO : Perpignan Méditerranée Métropole

En association avec le Groupe SUEZ

Architecte  : Agence Robin & Carbonneau

Mission de sous-traitance : Quatrefages Architecture

Lieu : Perpignan

SU :  620 m²

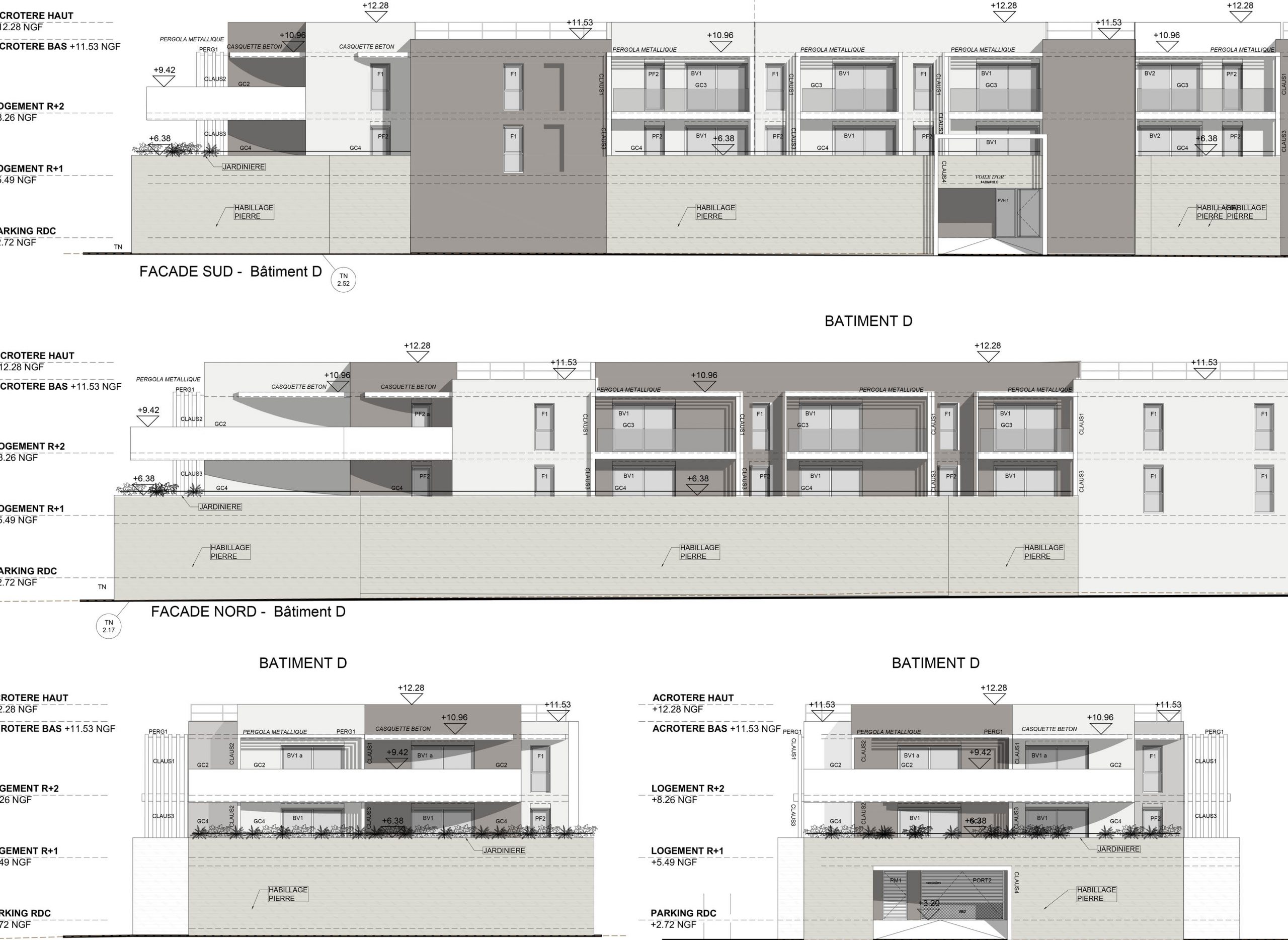
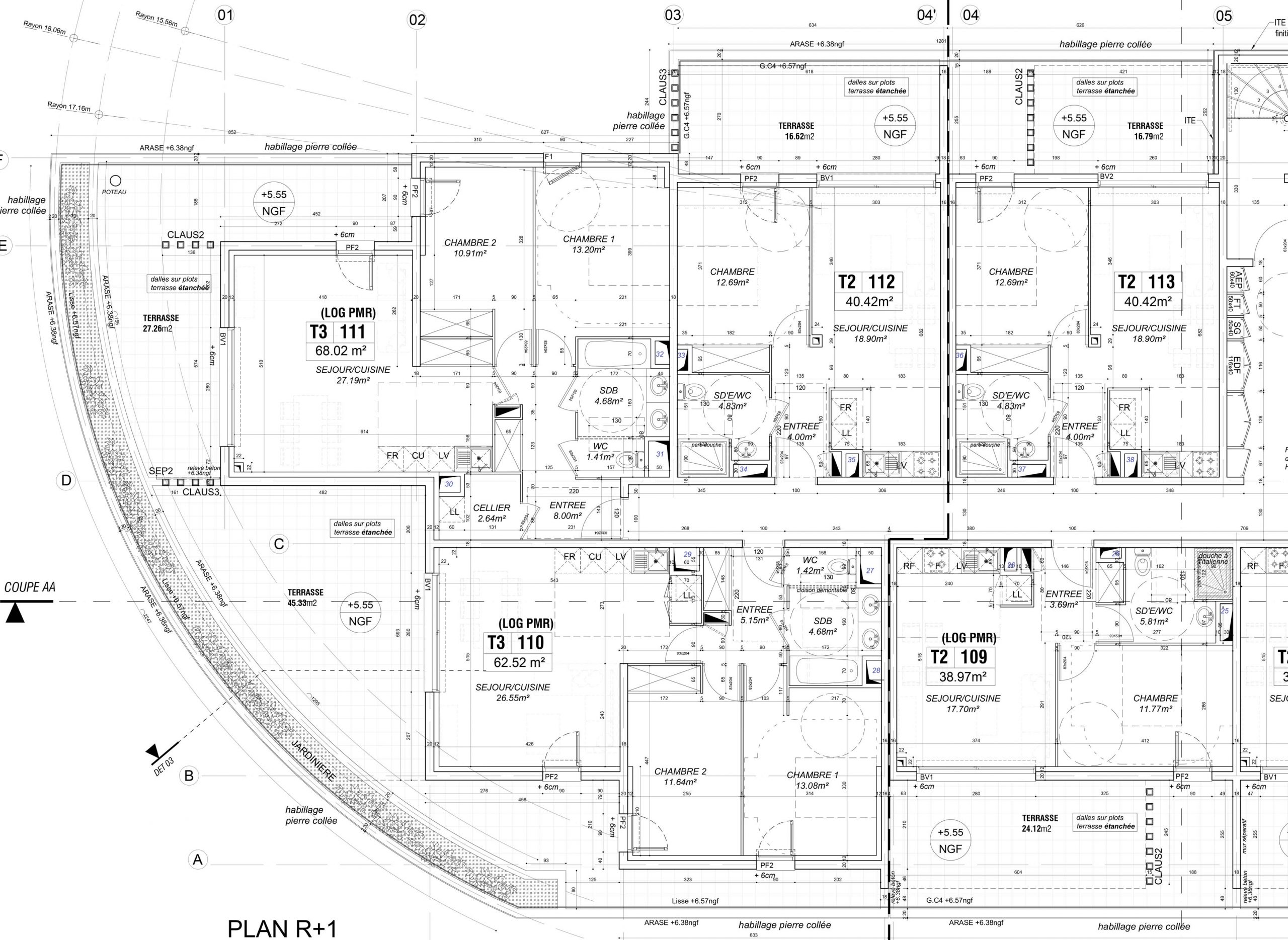
LOGEMENTS COLLECTIFS "Les voiles d'or"

ENSEMBLE DE 4 BÂTIMENTS , 89 LOGEMENTS

Phase : chantier en cours

MO : Némesis

Architecte : Nathalie Guerin _ ADA 

Mission de sous-traitance DCE : 

Quatrefages architecture 

Lieu : Barcares

SDP :  5120 m² + 4860 m² résidence sénior

Travaux : 12,4 M € logements collectifs + résidence sénior

MAISON JAU / nEUF

CREATION D’UNE VILLA TYPE T4 BIS EN R+1

Phase : Chantier en cours

MO : Privé

Architecte : Quatrefages Architecture 

Lieu : Lattes 34970

SDP :  135 m²

Coût travaux :  Privé

MAISON JEU / NEUF

CREATION D’UNE VILLA TYPE T4 EN R+1

Phase : Esquisse 2023

MO : Privé

Architecte : Quatrefages Architecture 

Lieu : Montpellier 34000

SDP :  135 m²

MAISON FAR / EXTENSION

CREATION D’UN ESPACE SEJOUR DEDANS-DEHORS

Phase : Livré 2022

MO : Privé

Architecte : Quatrefages Architecture 

Lieu : Lattes 34970

SDP :  50 m²

Coût travaux :  Privé

 

MAISON BAS / RENOVATION

REORGANISATION SPACIALE, MODIFICATION DES FACADES, RENOVATION ENERGETIQUE, PISCINE..

Phase : Livré 2020

MO : Privé

Architecte : Quatrefages Architecture 

Lieu : Lattes 34970

SDP :  115 m²

Travaux : 60 m²

expérience professionnelle chez Tourre Sanchis Architecte  – montpellier –  2008-2022

collaboration en tant que responsable de projet : 

. Institut de Cancer bâtiment B (médecine nucléaire) – Montpellier

. Logements collectifs (60 logements) résidence Plein Coeur  – Castelneau-le-Lez – Les Nouveaux Constructeur

. Logements collectifs (60 logements) résidence Belle Feuille –   Montpellier

. IFMS (Institut de Formation aux métiers de la santé ), Nîmes – CHU Nîmes Caremeau 

. Logements collectifs (57 logements), Ilot Charles de Gaulle- Nouvelle Ere – Castelnau-le-Lez – OPALIA HELENIS

. Logements collectifs (94 logements), résidence Aquarelle, Castelnau-le-Lez – PEGASE

. Logements collectifs (82 logements), résidence Néolez  Zac Rive Gauche – Montpellier – ICADE

. Logements collectifs (73 logements), résidence Foliaverde – Montpellier – ICADE

. Logements collectifs (42 logements), résidence Domaine de la Parre –  Saint Jean-de Védas – ICADE

. Logements collectifs (154 logements), résidence Green Garden – Montpellier – Les Nouveaux Constructeurs

. Commerces et logements (180 logements) , résidence Carré Rivoli – Castelnau-le-Lez – ICADE

. Commerces & bureaux, le Syracuse – le Crès – GGL

. Commerces & logements, résidence Europe Elysée II –  Castelnau-le-Lez – URBAT

. Commerces & logements collectifs (160 logements), résidence Neocity Montpellier – NEXITY

. Commerces & logements collectifs (57 logements), résidence Nouvelle Rive  Montpellier – NEXITY

. Logements collectifs (131 logements), résidence Via Domitia – Castelnau-le-Lez – URBAT

. Commerces & logements (110 logements), résidence Jardin RoyalCastelnau-le-Lez – ICADE

. Concours Ilôt 20 ZAC Eureka (132 logements) – Castelnau-le-Lez – NEXITY

. Concours Résidence Secteur Ponant (55 logements) – la Grande Motte – HÉRAUlT HABITAT

. Concours logements sociaux et Agence de solidarité (55 logements) – Frontignan – HÉRAULT HABITAT

. Concours Lot 13 – Secteur Roque Fraisse (140 logements en Résidence Sénior et logements sociaux) – Saint Jean de Védas – PEGASE

. Concours Logements « Lot 6D – 6C» Zac des Pielles, Frontignan

. Logements lot C1, Zac des Constellations, Juvignac

. Groupement de maisons individuelles, Zac des Constellations, Juvignac

collaboration  : 

. Internat pour les lycées Gide et Guynemer – Uzès

. Internat Georges Frêche – Montpellier

. Pôle ambulatoire et centre hémodialyse –  Alès

. Chambre de métiers et de l’artisanat de l’Hérault –  Montpellier

. Concours Zac Rive Gauche – Montpellier

. Concours Collège Beaucaire – Gard

. Zac Via Europa – Béziers

. Unité de soins – Arles-sur-Tech

. Lycée de Cournonteral – Région Occitanie

. Conseil Départementale de l’Hérault – Site Alco à Montpellier

. Lycée Ernest Ferroul – Lézignan Corbière

. Pôle chimie Balard – Montpellier

. Groupe Scolaire – Nissan Lez Ensérune